<fieldset id="bJUO"></fieldset>
<th><abbr></abbr></th>

          1. Hello! Welcome to Jiangsu Zhongwei Measurement and Control Instrument Co., Ltd.

            Steel double rotor flowmeter

            13鑄(zhu)鋼雙轉子流量(liang)計.png
            • 13鑄鋼雙轉(zhuan)子流量計.png
            ZW-LXZ series <strong> steel double rotor flowmeter</strong> is currently the ideal gene…

            Description:

            Productoverview:

            ZW-LXZ series steel double rotor flowmeter is currently the ideal generation volume flowmeter. Is a kind of unique design, a new kind of flowmeter precision machining and assembly. A pair of spiral rotor body * metering cavity movement to segmentation, measurement, transportation and excretion of the fluid to be measured. This type of flowmeter increases the gear position in the structure, the two rotor in rotation to each other without contact. The flowmeter work smooth operation and low noise, little abrasion, high accuracy, viscosity adaptability, can allow the measured fine particles in the liquid through which is not easy to watch.

            Two, structure principle:

            1, principle:

            ZW-LXZ series steel double rotor flowmeter for fluid flow measurement is completed in the measurement of cavity. A pair of spiral rotor rotating in the liquid under the pressure of a closed space is formed between the rotor and the measurement of cavity wall (Figure shadow) of each swing time through 8 times the volume of the shadow. According to this relationship, as long as the measurement of rotating frequency, we can calculate the flow accumulation, according to the second revolution, it can be used to measure the instantaneous flow.

            2, structure:

            Double rotor flowmeter is mainly composed of a casing, a pair of spiral rotor, magnetic coupling, reducer, gear adjustment, counter and signaling device. The body is divided into flowmeter monomer and dimer monomer is two. The shell and the box flowmeter as a whole; the shell and the two meter catamaran. The spiral rotor speed reducer. The mechanism of magnetic coupling and a series of gears, to meter counter. The magnetic coupling is mainly composed of a driving magnet and the driven magnetic steel. The magnetic coupling flowmeter can improve the working pressure and temperature, safe operation, convenient maintenance.

            Third, application:

            ZW-LXZ series steel double rotor flowmeter is used in pipeline liquid flow measurement and control instrument. Widely used in petroleum, chemical, metallurgy, electric power, transportation, shipbuilding, oil depots, docks, tankers and other departments, especially for the measurement of crude oil, refined oil, flowmeter in light hydrocarbon and other industrial liquids can be directly read the instructions, word and dispensing hearing, output electric pulse signal transmitted to the secondary instrument or computer composition, automatic control, automatic detection and data processing system.

            Fourth, the main features:

            1, high accuracy, good repeatability, stable operation, no pulsation and long service life;

            For straight section 2, flow meter and no small installation space;

            3, the flow is not affected by the accuracy of impact pressure and flow changes, stable performance;

            4, with the temperature and pressure sensor, the gas temperature and pressure compensation;

            5, with the pulse signal, analog signal, and can realize the centralized management of computer real-time data through the RS485 communication interface;

            6, low power consumption, by battery power supply, also can be an external power supply;

            7, special high resolution liquid crystal display, intuitive and convenient reading.

            Fifth, technical parameters:

            1, can be measured in liquid petroleum, petroleum products, chemical medium etc.;

            2, nominal diameter (mm) of 10, 15, 25, 40, 50, 80, 100, 150, 200, 250, 300;

            3, accuracy (%) 0.1, 0.2, 0.5;

            4 0.4-3 mPa.s <40KPa, pressure loss;

            5, working pressure (MPa) 1.6, 2.5, 4.0, 6.3;

            6, the temperature range (c) -20 ~ +60, -20 ~ +120, +100 ~ +200, +150 ~ +250;

            7, protection grade IP65;

            8, environmental temperature (-30 ~ +70 C);

            9, medium viscosity (0.32 ~ 1000mPa.smPa.s);

            Installation requirements:

            1, environmental conditions: no corrosive fluids, small mechanical vibration, less dust and place away from heat. For a volume correction instrument of intelligent flowmeter, should also comply with the provisions of the environment.

            2, environmental temperature: not more than -20, the range of +8O DEG C.

            3, the pipeline conditions: installation in front of flowmeter, piping must be cleaned and purged, remove all debris, rust and dirt. Connecting pipe should be in accordance with the import and export of the same caliber flowmeter axis, may not have bulges protruded convex wall in the pipeline. Flow meter should take the stress free installation, considering pipe work caused by temperature stress.

            As a new type of flowmeter, only to meet the conditions and according to the requirements of the correct use, can make use of the ideal price, prolong the service life. Therefore must pay attention to the following 3 problems in the selection and use of.

            1, because the single shell structure, Zui high pressure is higher than that of 2.0MPa, so is the use of high-pressure long pipeline transportation.

            2, non consecutive occasions when used again, must from the exhaust hole net metering cavity air to prevent cavitation caused by measuring error increases and graphite bearing damage.

            3, the rotor clearance is not higher than 0.2 m, and the medium in the metering chamber to travel longer, the medium purity requirements than other volumetric flowmeter, requiring the use of not less than 40 to the stainless steel filter and regular cleaning. The rotor is cast iron, medium water requirement rate is less than 5%, otherwise it will affect the use of corrosion.

            Seven, installation notes:

            1, the installation direction should be the direction of the arrow shown on the instrument shell and liquid flow in the same direction, the installation position should pay attention to reading

            2, try to install instruments in normal occasions, do not install in harmful gases and strong thermal radiation situations, to prevent damage to the counter part of instrument.

            The rotor shaft 3, the instrument as much as possible to install the horizontal position, the dial should be installed into the vertical position ("0" in the above indexing), to reduce the friction between the gear and the shell, reducing the wear of parts. Due to the different installation positions, in order to facilitate the reading, the counter (header) rotating 90 degrees or 180 degrees. Electronic meter installation with vertical installation, head of state and at right angles to the body, easy to read.

            Before installation, 4 meters, the pipeline must be cleaned thoroughly in the piping system, if there is no strict filtering device, filters should be installed in the instrument, to prevent impurities from entering the table.

            5, should be installed in the pump outlet, the flow control valve should be installed in the instrument downstream, when used to open the upstream valve, then slowly open the downstream flow regulating valve or. Is suddenly turned on or off.

            6, in the use of instruments, should be full of liquid flow in the table. Tested in vivo should not be mixed with gas, mixed volume measurement not otherwise measured air and liquid. The liquid is mixed in the gas must be installed in the instrument before gettering.

            7, the flow of the pipeline should not dramatically increase or decrease, should be avoided and pressure piping vibration, hydraulic shock volatility phenomenon, otherwise it will affect the normal work of instruments.

            8 Z, the flow exceeds the specified flow is large, with double rotor speed of wear increases, and the pressure loss increased sharply, should avoid the use of less than Z, small flow, still can measure, but the error increases, the starting flow flowmeter is about Zui high flow 3%, normal work flow for the Z flow of 70%-80%.

            9, for the measurement of high viscosity liquid, generally the liquid is heated to reduce viscosity, and flow in the pipe, when the instrument is disabled, liquid cooling instrument filled with the variable viscosity, such as to enable, must use steam or thermal oil in the body, the external heating liquid red hot method for liquid viscosity the instrument can be used after reduced. Otherwise the viscosity will bite the transmission parts, resulting in damage to the instrument.

            10, the measured liquid temperature should not exceed the specified value, even more than the instrument gets stuck.The additional error can also cause changes in the temperature of the liquid viscosity influence. In addition, the temperature also caused an increase in spiral space volume increased, the instrument "go slow",

            The factory 11, each meter, with diesel at room temperature under normal temperature calibration, oil density: 0.84M3/KG, such as liquid viscosity users and this difference is larger, can exchange the double gear or adjust the instrument coefficient to correct the error.

            12, prohibit the use of purging steam and water through the instrument.

            Eighth, structure and dimensions:

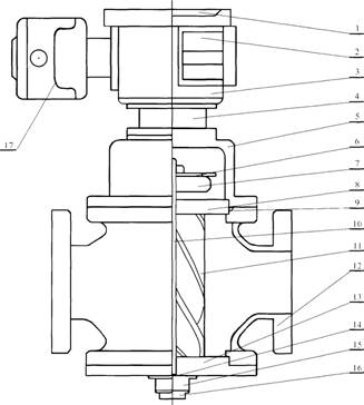
            1, rotor structure

                                  

            Rotor assembly

            2, the overall structure of intelligent meter

                          

            The overall structure of intelligent meter:

            Note: 1, 2., 3. and two times the battery meter table 4. connecting seat type 5.U 6. - 7. cap positioning 9.O type ring gear 8. on the cover 10. 11. 12. 13. of the main rotor shaft, the upper cover 14. thrust bearing 15. adjustment screws 16. bottom cover 17. remote.

            See Table 3, size: 

            entry name

            Nominal pressureMpa

            Size

            Flange size

            Bolt

            L

            D

            H

            H1

            D1

            D2

            D3

            X

            Y

            H

            T

            T1

            Number

            Thread

            ZW-LXZ80

             

            1.6, 2.5

            Three hundred and eighty

            Two hundred and seventy

            Six hundred and ninety

            One hundred and fifty-four

            One hundred and ninety-five

            One hundred and sixty

            One hundred and thirty-five



            Twenty

            Three


            Eight

            Ml6

            4, 6.4

            Three hundred and eighty

            Two hundred and seventy

            Six hundred and ninety

            One hundred and fifty-four

            Two hundred and twenty

            One hundred and seventy-two

            One hundred and forty

            One hundred and twenty-seven

            One hundred and twenty-eight point six

            Thirty

            Seven

            Five

            Eight

            M20

            10, 16















            ZW-LXZ100

             


            Three hundred and eighty

            Three hundred and fifty-two

            Seven hundred and forty

            One hundred and ninety

            Two hundred and thirty

            One hundred and ninety

            One hundred and sixty



            Twenty-two

            Three


            Eight

            M20

            4, 6.4

            Three hundred and eighty

            Three hundred and fifty-two

            Seven hundred and forty

            One hundred and ninety

            Two hundred and sixty

            Two hundred and four

            One hundred and seventy

            One hundred and fifty-seven

            One hundred and fifty-eight point eight

            Thirty-two

            Seven

            Five

            S

            M22

            10, 16















            ZW-LXZ150

             

            1.6, 2.5

            Five hundred and sixty

            Four hundred and twenty

            Eight hundred and forty

            Two hundred and twenty

            Three hundred

            Two hundred and fifty

            Two hundred and eighteen



            Twenty-seven

            Three


            Eight

            M20

            4, 2.4

            Five hundred and sixty

            Four hundred and twenty

            Eight hundred and forty

            Two hundred and twenty

            Three hundred and thirty

            Two hundred and eighty

            Two hundred and twenty-eight

            Two hundred and sixteen

            Two hundred and seventeen point five

            Thirty-eight

            Seven

            Five

            1 "'

            M24

            10, 16















            ZW-LXZ200

             

            1.6, 2.5

            Seven hundred

            Five hundred and sixty

            Eight hundred and ninety

            Two hundred and forty

            Three hundred and sixty

            Three hundred and ten

            Two hundred and seventy-four



            Twenty-seven

            Three


            Twelve

            M24

            4, 6.4

            Seven hundred

            Five hundred and sixty

            Eight hundred and ninety

            Two hundred and forty

            Three hundred and seventy-five

            Three hundred and twenty

            Two hundred and eighty-four

            Two hundred and fifty-seven point five

            Two hundred and fifty-nine

            Thirty-four

            Seven

            Five

            Twelve

            M28

            10, 16















            ZW-LXZ250

             

            1.6, 2.5

            One thousand

            Seven hundred and twenty

            1100

            Two hundred and seventy

            Four hundred and twenty-five

            Three hundred and seventy

            Three hundred and thirty



            Twenty-nine

            Three


            1 "'

            M24

            4, 6.4

            One thousand

            Seven hundred and twenty

            One thousand and one hundred

            Two hundred and seventy

            Four hundred and forty-five

            Three hundred and thirty-eight

            Three hundred and thirty-five

            Three hundred and twenty-four

            Three hundred and twenty-five point five

            Forty-eight

            Seven

            Five

            Sixteen

            M28

            10, 16















            ZW-LXZ300

            <, >1.6 ,Two point five
            1.6, 2.5

            One thousand

            Seven hundred and twenty

            One thousand two hundred and thirty

            Four hundred

            Four hundred and eighty-five

            Four hundred and thirty

            Three hundred and ninety



            Thirty

            Four


            1.

            M24

            4, 6.4

            One thousand

            Seven hundred and twenty

            One thousand two hundred and thirty

            Four hundred

            Five hundred and twenty

            Four hundred and fifty-one

            Three hundred and ninety-two

            Three hundred and eighty-one

            Three hundred and twenty-eight point six

            Fifty-one

            Seven

            Five

            Sixteen

            M30

            Nine, measuring range:

            LXZ-80

            Eighty

            9~36

            4.5~36

            3.6~36

            3.6~36

            2.8~25

            2.8~25

            4.5~18

            LXZ-80

            20~80

            10~80

            10~100

            10~100

            6.5~56

            6.5~56

            5~40

            LXZ-100

            One hundred

            20~80

            10~80

            10~100

            10~100

            6.5~56

            6.5~56

            5~40

            LXZ-100

            25~100

            13~100

            15~150

            15~150

            8.5~80

            8.5~80

            6.5~55

            LXZ-150

            One hundred and fifty

            25~100

            13~100

            15~150

            15~150

            8.5~80

            8.5~80

            6.5~55

            LXZ-150

            55~225

            30`250

            25~250

            25~250

            18~150

            18~150

            10~100

            LXZ-200

            Two hundred

            55~225

            30`250

            25~250

            25~250

            18~150

            18~150

            10~100

            LXZ-200

            90~360

            50~400

            40~400

            40~400

            28~240

            28~240

            20~160

            LXZ-250

            Two hundred and fifty

            90~360

            50~400

            40~400

            40~400

            28~240

            28~240

            20~160

            LXZ-250

            130~540

            65~540

            60~600

            60~600

            42~360

            42~360

            30~240

            LXZ-300

            Three hundred

            130~540

            65~540

            60~600

            60~600

            42~360

            42~360

            30~240

            LXZ-300

            220~800

            110~900

            95~950

            95~950

            70~600

            70~600

            54~450

            LXZ-350

            Three hundred and fifty

            220~800

            110~900

            95~950

            95~950

            70~600

            70~600

            54~450

            Ten, the selection of encoding:

            The basic model

            One

            Two

            Three

            Four

            Five

            Six

            Description (Zhongwei control)

            Nominal diameter

            Counter

            Nominal pressure

            Features

            Transmitter

            working temperature

               ZW-LXZ-E







            Said: double rotor flowmeter


               Eight






            The nominal diameter of 8mm


               Three hundred and fifty






            The nominal diameter of 350mm



               W





            No message header pulse



               J





            Mechanical counter



               E





            Electronic counter



               H





            Zero mechanical counter




               One point six




            The nominal pressure is 1.6Mpa




               Two point five




            The nominal pressure of 2.5 Mpa




                Four




            The nominal pressure of 4 Mpa




               Six point three




            The nominal pressure of 6.3 Mpa





               Three hundred and four



            The rotor is 304 stainless steel





               Three hundred and sixteen



            The rotor is 316 stainless steel





               C304



            Shell, rotor for 304 stainless steel





               C316



            Shell, rotor for 316 stainless steel






               F


            Pulse output






               I


            4-20 mA output current.







               A

            Working temperature -20~+80







               B

            Working temperature -20~+150







               C

            Working temperature -20~+250







            D

            Working temperature -20~+350

            Eleven, design selection and ordering instructions:

            1, the name and type of flowmeter. Specification and material etc..

            2, medium temperature (c) and pressure (Mpa), flow range (m3/h).

            3, medium viscosity or medium name.

            4, there are no special requirements (such as explosion-proof etc.).

            5, you need a detailed understanding of the product, please call for information.

            6, you need to display instrument Zhongwei control, please refer to the corresponding instructions, the appropriate choice of models or provided by the technical personnel of our company according to your information for your selection.

            Customer service service commitment:

            1, my company sold Zhongwei double rotor flowmeter series product quality problems within twelve months, responsible for free maintenance.

            2, the warranty period if the products of our company have any quality problems, our company is responsible for free repair or replacement.

            3, the warranty period if the user use undeserved, cause damage to the product, our company is responsible for the maintenance, collect the damaged parts cost.

            4, after the warranty period of product quality problems, our company is responsible for the maintenance, collect the damaged parts cost.

            5, if the user needs to our service, our company in the province of the user service personnel arrived at the scene within 12 hours, arrived at the scene 48 hours outside users.


            Tags: 鑄鋼雙轉子流量計,雙轉(zhuan)子(zi)流量計  
            Browse:
            Return To The Top

            分亯到:

            QAKLTjavascript:void();
            <fieldset id="bJUO"></fieldset>
            <th><abbr></abbr></th>